Not Available Anymore  

2 Bedroom Bungalow For Sale

Galashiels, TD1 3RX

TD1 3RX, Abbotsferry Road, Tweedbank, Galashiels, TD1, Galashiels

Sale Price: £155,000

Listed 15 days ago and may not be available Listed on 2/22/2015

 Huntly Road Melrose
*When you call don't forget to mention Houser.co.uk

Galashiels, TD1 3RX

Property Summary:

Bungalow
2 Bed(s)
-- Bath(s)
interested in this property.
 

Property description

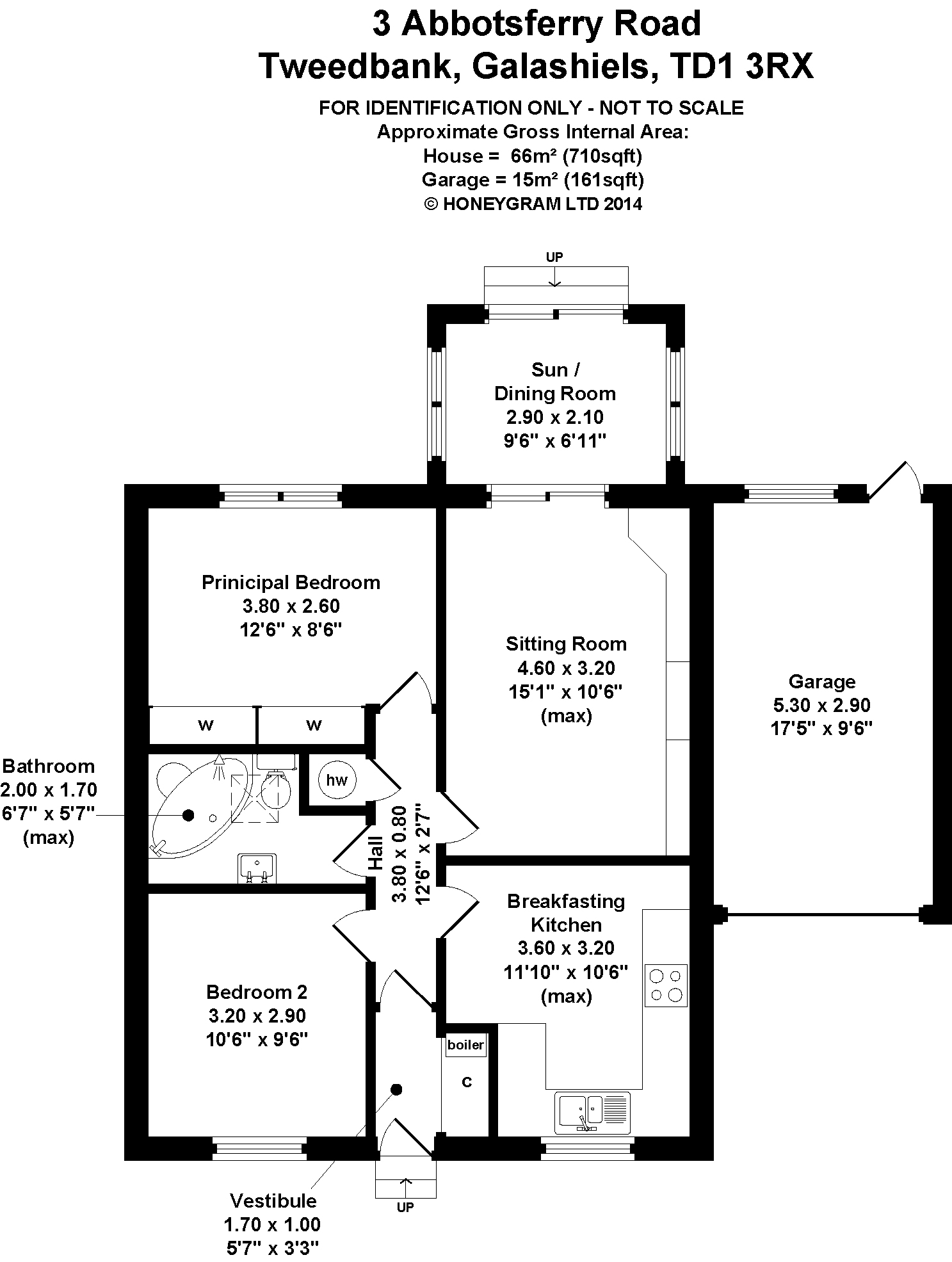
3 Abbotsferry Road is a detached two-bedroom bungalow set in a popular residential area on the fringes of Tweedbank, which lies between the Borders towns of Melrose and Galashiels.
Internally, the property lies across one level and comprises two bedrooms, a bathroom, a sitting room, a breakfasting kitchen and a dining/sun room.
Externally, there is driveway parking for two cars, a single garage to the side and garden to the front and rear.
Access to most Borders towns as well as Edinburgh, Newcastle and Carlisle is readily available via the A68, the A7 and most interlinking roads. It should also be noted that Tweedbank is the 'start and finish' for the new Borders Railway link between Edinburgh and Tweedbank, which is due to open in the autumn of 2015.

EPC: D68

Edinburgh 41 miles. Galashiels 2.5 miles. Melrose 2.5 miles
(All distances are approximate)

*You can contact the agent 7 days a week to organise a viewing - subject to availability - 01896 820 226*


Property Features :

  • Garage & Parking
  • Garden to Front & Rear
  • Double Glazing
  • Gas Fired Central Heating

Property Info: