Not Available Anymore  

4 Bedroom Property For Sale

Evesham Close Hutton Preston, PR4 5FJ

PR4 5FJ, Evesham Close, Hutton, Preston, PR4, Preston

Sale Price: £205,000

Listed 15 days ago and may not be available Listed on 2/13/2015

 78 Liverpool Road, Longton,
*When you call don't forget to mention Houser.co.uk

Evesham Close Hutton Preston, PR4 5FJ

Property Summary:

Property
4 Bed(s)
-- Bath(s)
interested in this property.
 

Property description

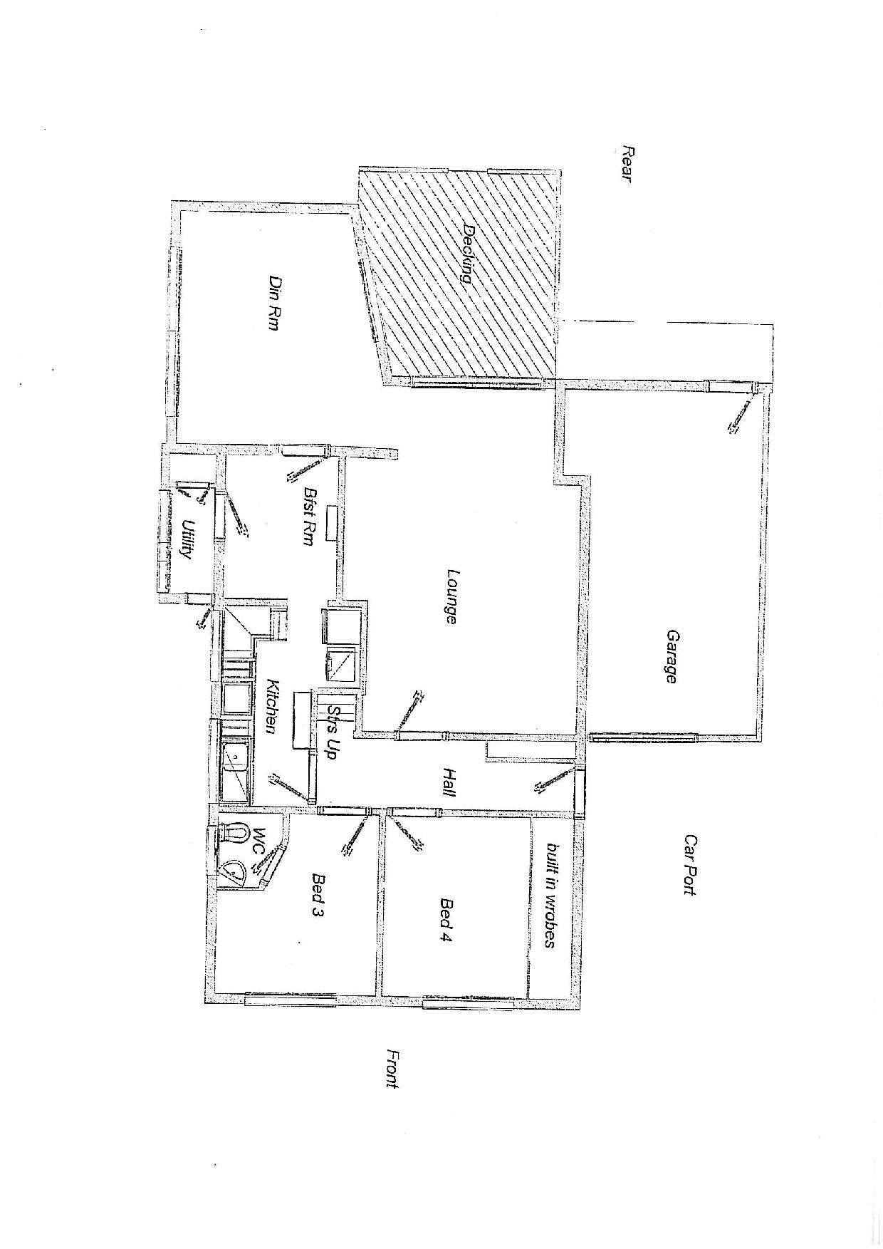
Lawrence Rooney Estate Agents are pleased to offer for sale this deceptive and versatile detached property located in the village of Hutton. A popular location within easy reach of the local schools, amenities and the motorway network. The flexible living accommodation is arranged over ground and first floors briefly comprising: Entrance hall, lounge, dining/sitting room, breakfast room open to modern kitchen, side porch and two ground floor bedrooms (one with en-suite/W.C), two further bedrooms, bathroom and a W.C to the first floor. Externally the property benefits from two driveways, carport and garage and a  private garden to the rear. Finally to add to the many benefits already mentioned the property is warmed by gas central heating, has double glazed windows throughout and must be viewed from within to fully appreciate.  

Entrance Hall
External door to the side elevation, cloaks cupboard, central heating radiator and stairway to the first floor.

Lounge - 20' 0'' x 12' 5'' (6.1m x 3.78m)
Extended reception room having inset coal effect living flame gas fire, two wall light points, television point, central heating radiator and double glazed patio door opening up onto decked patio area. Telephone point.

Dining/Sitting Room - 12' 6'' x 10' 3'' (3.81m x 3.12m)
Having wooded feature fire surround with two wall light points to either side. Double glazed window to the side and rear elevation, ceiling light point and central heating radiator.

Breakfast Room - 8' 4'' x 7' 5'' (2.54m x 2.26m)
Fitted wall and base units with contrasting work surfaces. Central heating radiator, door to side porch and open archway leading to:

Modern Kitchen - 12' 0'' x 9' 9'' (3.66m x 2.97m)
Fitted with a range of modern wall and base units with contrasting work surfaces incorporating inset stainless steel single sink/drainer unit with mixer tap over. Space for oven/gas hob with stainless steel hood with extractor and light, plumbed for automatic washing machine, tiled splashbacks, two ceiling light points and telephone point.

Side Porch - 4' 5'' x 3' 6'' (1.35m x 1.07m)
Built in storage cupboard and door leading onto side paved patio area.

Bedroom Two - 11' 0'' x 10' 9'' (3.35m x 3.28m)
Built in wardrobes to either side of central bedspace with two double top boxes and inset lighting over bed. Centre light and wall light. Central heating radiator and double glazed window to the front evelation.

Bedroom Three - 10' 9'' x 10' 0'' (3.28m x 3.05m)
Double glazed front window, ceiling light and wall light points. Telephone point and central heating radiator.Seperate En-Suite/W.C comprising: wash hand basin and low level W.C. Side window, central heating radiator and part tiled elevations.

Landing
Spindled balustrade and double glazed side window.

Master Bedroom - 13' 4'' x 12' 4'' (4.06m x 3.76m)
Extensive range of built in bedroom furniture including two double wardrobes, storage cupboards/chest of drawers, one with inset wash hand basin, two bedside cabinets and headboard. Double glazed side window, central heating rdaitor and wall/ceiling light points. Telephone point.

Bedroom Four - 8' 8'' x 7' 4'' (2.64m x 2.24m)
Double glazed window to the side elevation. Central heating radiator and telephone point.

Modern Bathroom - 8' 7'' x 7' 1'' (2.62m x 2.16m)
Four piece suite in 'white' comprising: panelled bath, shower cubicle with shower unit over, pedestal wash hand basin and bidet. Attractive fully tiled walls, extractor fan ,built in storage cupboard with wall mounted gas combination central heating boiler. Chrome heated towel rail and double glazed side window.

Seperate WC - 4' 10'' x 3' 8'' (1.47m x 1.12m)
Pedestal wash hand basin and low flush wc. Double glazed side window, central heating radiator and part tiled walls.

Outside
The front garden is mainly laid to lawn with planted borders having driveways to either side of the property, one providing access to carport and brick built garage.

Garage - 19' 5'' x 9' 9'' (5.92m x 2.97m)
Up and over front door, power and lighting. Telephone point.

Rear Garden
The landscaped west facing rear garden benefits from a high degree of privacy. Mainly laid to lawn having a variety of planted borders and trees, seating area in the corner of the garden, gravelled area with rockery and 'firepit', raised decked patio and paved pathway/patio leads down the side of the property. There is a low level illumination.

Image of   house front
Image of house front  
Image of   living room
Image of living room  
Image of   dining room
Image of dining room  
Image of   dining room
Image of dining room  
Image of   kitchen
Image of kitchen  
Image of   kids room
Image of kids room  
Image of   kids room
Image of kids room  
Image of   front lawn
Image of front lawn  
Image of   front lawn
Image of front lawn  
Image of   kids room
Image of kids room  
Image of   kids room
Image of kids room  
Image of   front lawn
Image of front lawn  
Image of   bathroom
Image of bathroom  
Image of   front lawn
Image of front lawn  
Image of   rear elevation
Image of rear elevation  

Property Features :

  • Versatile Detached
  • Extended Accommodation
  • 4 Bedrooms & 3 Reception Rooms
  • Modern Fitted Kitchen
  • Two Driveways, Carport & Garage

Property Info: