Not Available Anymore  

1 Bedroom Apartment For Sale

Cambridge, CB5 8QE

CB5 8QE, Ditton Walk, Cambridge, CB5, Cambridge

Sale Price: £215,000

Listed 15 days ago and may not be available Listed on 2/19/2015

 Bateman House, 82-88 Hills Road, Cambridge
*When you call don't forget to mention Houser.co.uk

Cambridge, CB5 8QE

Property Summary:

Apartment
1 Bed(s)
-- Bath(s)
interested in this property.
 

Property description

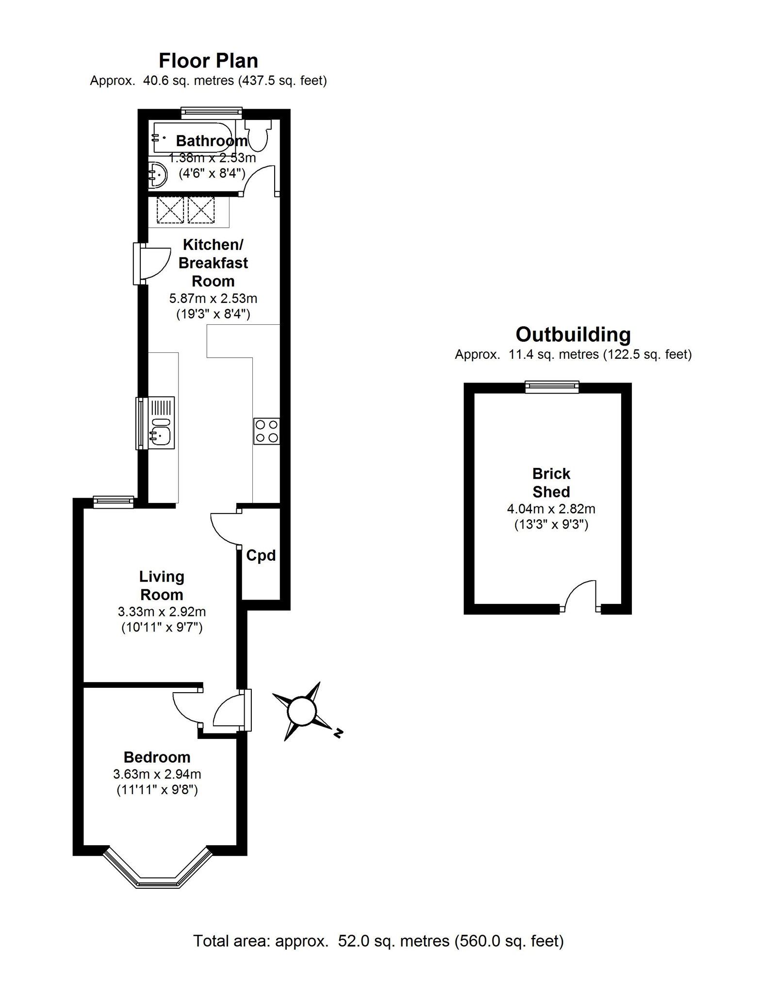
Part of a converted Victorian house, this recently completed, ground floor apartment offers very stylish accommodation that has been finished to a high standard and good specification throughout. The living room has a window to the rear, a large built-in storage cupboard, and is open-plan to the impressive kitchen/breakfast room. Well-appointed and featuring underfloor heating, the kitchen has a good range of white-fronted units with granite-effect worktops, breakfast bar, inset electric 'induction ' hob with built-in oven under and stainless steel extractor hood over, integrated fridge/freezer and dishwasher, tiled floor, and door to rear garden. The utility area has space and plumbing for a washing machine and tumble dryer. In the double bedroom is a west-facing bay window with sash windows. Beautifully fitted, the bathroom has a panelled bath with tiled surround, screen to side, and 'Aqualisa Quartz Digital' shower over, wash basin with tiled splash back, low-level W.C., heated towel rail, and underfloor heating.



Outside, the property has a sitting area directly to the rear of the house, which is mainly laid to gravel. There is a further paved area and private garden along with a large brick-built outbuilding, which could potentially be converted into a garden studio (subject to necessary consents).



Agent's Note: There may be a possibility to acquire, by separate negotiation, further garden space.
Image of   bathroom
Image of bathroom  

Property Features :

  • Stylish and well-presented
  • Garden with an outbuilding
  • Share of the freehold and a new 999 year lease
  • No chain

Property Info: