Not Available Anymore  

Property For Sale

Berriedale, KW7 6HA

KW7 6HA, Berriedale, KW7, Berriedale

Sale Price: £155,000

Listed 15 days ago and may not be available Listed on 2/22/2015

 Ardross House, 3 Ardross Terrace, Inverness
*When you call don't forget to mention Houser.co.uk

Berriedale, KW7 6HA

Property Summary:

Property
-- Bed(s)
-- Bath(s)
interested in this property.
 

Property description

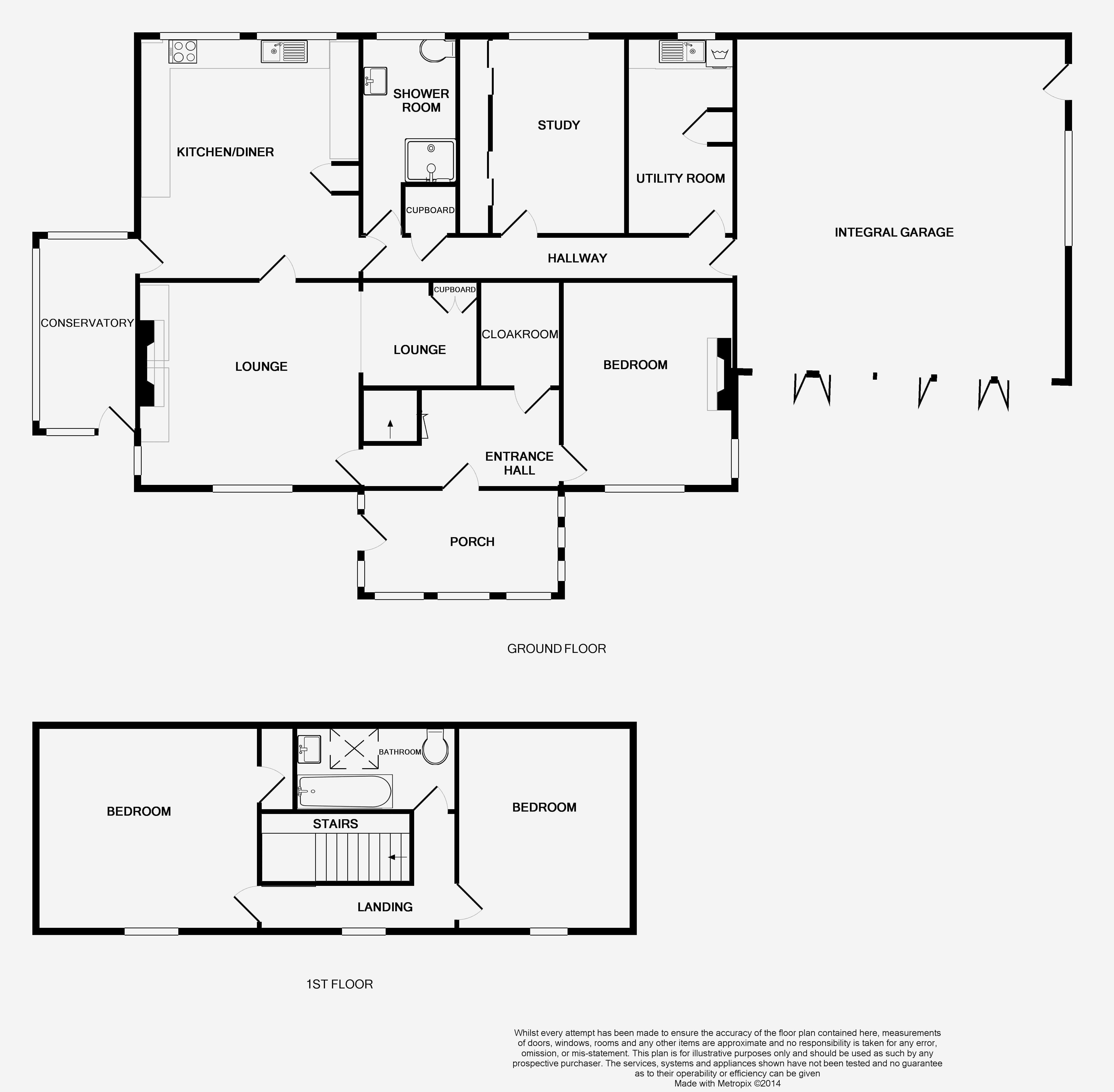
Yvonne Fitzgerald and Re/Max Premier are delighted to present to the market this home with amazing sea views. This attractive four bedroom property is situated on Berriedale. The property has a beautiful garden. Berriedale is centrally located for both Thurso where there is a cinema and wide range of amenities and Wick where there is the John O'Groats Airport, retail park, Caithness General Hospital and national stores is also a short drive away. The local primary school is in Dunbeath, while secondary education can be gained at Wick High School.

Property Features :

  • SEA VIEWS
  • MATURE GARDEN
  • LOVELY LOCATION
  • OFF ROAD PARKING

Property Info: